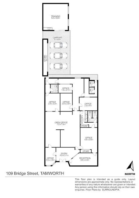
109 Bridge Street
Tamworth NSW 2340
        $680,000
      
                  
      Brilliant Opportunity! Owner Occupier or Investor
Key Features:• Prime exposure on Bridge Street, Tamworth
• 226sqm versatile space* - mix of offices, open plan areas, plus separate conference/boardroom with kitchenette
• Rear lane access with 3 secure undercover car parks
• Only 1 block from Tamworth Shoppingworld
• Fitted with reverse-cycle air-conditioning, security system, and solar panels
• Flexible layout - ideal for professional offices or retail use
Call agent today to arrange your personal inspection of this exceptional opportunity.
*approx.
Features
General Features
- Land Area: 455sqm
- Commercial Type: Offices
- Building Area: 226sqm
Can I afford 109 Bridge Street?
With access to the best on offer from 30 lenders and complete support and advice from pre-approval to settlement, you can trust an Elders Home Loans broker to find a quick and simple solution.
Get a QuoteElders Real Estate Tamworth
Enquire about 109 Bridge Street, Tamworth, NSW, 2340
 
         
                       
                       
                       
                       
                       
                       
                       
                       
                       
                       
                      